Vester Allé Kaserne


Vester Allé Kaserne var en større bykaserne, der nu er nedlagt, og som lå på området mellem Vester Allé, Frederiks Allé og Thomas Jensens Allé. Kasernen, som også var kendt som Rytterikasernen, blev opført i perioden 1875-1878 og blev lukket endegyldigt i 1969.
Byens dragoner

I 1860 blev et stort grundmuret ridehus opført lige uden for Frederiks Port i den sydlige del af byen. Det var Krigsministeriet, der stod bag opførelsen af ridehuset, som skulle benyttes til 3. Dragonregiment. Dragonerne var kommet til Aarhus i 1819 – dengang under navnet Prins Frederik Ferdinands dragoner – og indtil 1864 var dragonerne byens eneste regiment.
Hvor Krigsministeriet havde sørget for det fine nye ridehus, så situationen anderledes ud, når det kom til indkvartering. Det var byens opgave at sørge for, at soldaterne fik tag over hovedet. Dragonerne blev stuvet sammen i private hjem og i interimistiske kaserner som Lewerckhusens kaserne i Mindegade, Grarups kaserne i Mejlgade, Bauditz kaserne i Søndergade og Nisteds kaserne. Da garnisonen i 1860’erne blev yderligere forøget, blev forholdene forværret, og i 1873 var Aarhus Byråd nået til den erkendelse, at grænsen var nået. Erkendelsen kom især efter stærkt pres fra Aarhus Handelsforening og efter rygter om Krigsministeriets overvejelser om at trække militæret ud af Aarhus. Nye kaserner måtte opføres.
Rytterikasernen opføres
Det fik Aarhus Byråd til - efter pres fra Aarhus Handelsforening - at indlede forhandlinger med Krigsministeriet via et Kaserneudvalg, bestående af borgmester Ulrich Christian von Schmidten og fire byrådsmedlemmer, og derefter påbegyndtes bygningen af kaserner.
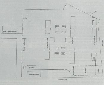
Byens nye rytterikaserne blev naturligt nok placeret ved det allerede eksisterende ridehus, og fra 1875-1878 skød de nye bygninger frem. Det var byrådsmedlem og arkitekt Carl Lange, som stod bag tegningerne til den nye kaserne. Lange tegnede også Infanterikasernen i Høegh-Guldbergs Gade og Garnisonssygehuset i Valdemarsgade – begge blev opført sideløbende med rytterikasernen.
Den første bygning, som kunne tages i brug ved Rytterikasernen, var skolestalden, der foruden stalde også indeholdt fægtesal og foderloft. I 1876 kunne den såkaldte skolekaserne langs Vester Allé tages i brug. Fordelt på fire etager fandtes her kontorer, belægningsstuer og samlings- og undervisningsrum. Endelig fandtes der også her officersboliger, hvorfor bygningen senere blev kendt som Officersbygningen. Det var i disse to bygninger, de nye rekrutter blev placeret.
3. Dragonregiment, der dengang bestod af to eskadroner, havde både sin egen staldbygning og kasernebygning på området. Derudover blev der opført en underofficerskaserne i Valdemarsgade, og hele den samlede herlighed endte med at koste omkring 500.000 kr. – noget mere end det oprindelige budget.
Fra dragoner til cyklist-eskadroner
I 1932 blev 3. og 5. Dragonregiment lagt sammen, og under navnet Jyske Dragonregiment flyttede de til Randers. Den 28. juni 1936 – altså fire år efter dragonerne var flyttet til Randers – afslørede man ved Vester Allé Kaserne en mindesten for 3. Dragonregiment. Denne mindesten blev den 28. oktober 1962 flyttet til Dragonkasernen i Holstebro.

Efter dragonernes forflyttelse blev kasernen på Vester Allé indtaget af et panservognskompagni, to cyklist-eskadroner og to feltartilleriafdelinger fra 3. Feltartilleriregiment. Selv om kanonerne var hestetrukne, var de egentlige dragoner væk, og kasernen ændrede derfor navn fra Rytterikasernen til Vester Allé Kaserne – eller Kasernen, Vester Allé.
Under 2. verdenskrig blev Vester Allé Kaserne – sammen med byens andre kaserner - overtaget af tyskerne, som opførte flere træbarakker på området. Allerede før krigen havde byens kaserner lidt under pladsmangel, og en bombning af Artillerikasernen i Langelandsgade i 1944 gjorde kun problemerne værre. Derfor fik træbarakkerne lov til at stå, da de danske soldater i juni 1945 endnu engang kunne rykke ind på Vester Allé Kaserne. På trods af gentagne klager over soldaternes leveforhold stod træbarakkerne, indtil kasernen lukkede i 1969.
Fra 1950’erne og frem blev flere regimenter flyttet væk fra byen, og den 24. september 1969 kunne de sidste soldater fra Nørrejyske Artilleriregiment marchere ud af Vester Allé Kaserne. En æra var slut!
Lukning - hvad så?

Da kasernen blev endeligt lukket, medførte det en længere debat om kasernens videre skæbne. Træbarakkerne og diverse sidebygninger skulle rives ned – her i blandt Prins Ferdinands Ridehus fra 1819. Hvad der skulle ske med den store officersbygning og Ridehuset på hjørnet Vester Allé og Frederiks Allé, var der dog stor uenighed om. Flere mente, at de store gamle skrumler skulle rives ned, så noget nyt og mere tidssvarende kunne blive opført.
Blandt disse var Aarhus Kommunes stadsarkitekt Sven Pedersen og flere byrådsmedlemmer. I stedet kunne opføres en ny politistation, en udvidelse af enten rådhuset eller Brobjergskolen, underjordisk city-parkering, en ny brandstation, et kongreshus, et hotel eller et musikhus. Ja, forslagene var mange. Andre var fortalere for bevarelse. De gamle bygninger kunne benyttes til sociale formål som forsorgsarbejde eller ungdomsaktiviteter.
Beslutningsprocessen trak i langdrag, og i august 1974 kunne man læse i Århus Stiftstidende, at ”Borgernes skepsis over for bystyrets vilje til at gøre noget ved sagen er ved at være på sit højdepunkt.” Selvom den konservative rådmand Olaf P. Christensen udtalte ”nu er det slut med snak” og forsikrede stiftens læsere om, at en løsning var på vej, skulle der gå mere end to år, før byrådet ved en afstemning endelig besluttede, at de to gamle bygninger fik lov til at overleve. Otte byrådsmedlemmer stemte for en nedrivning, mens 20 medlemmer ønskede en bevaring.
Foreninger, besættere og musikskole
På trods af afstemningsresultatet fortsatte Olaf P. Christensen med at forsøge at samle flertal for nedrivning af officersbygningen. Ridehuset blev i mellemtiden - ligesom nu - benyttet til diverse ad hoc-arrangementer, mens lokaler i officersbygningen blev lejet ud til forskellige organisationer som Aldrig mere krig, Noah, Amnesty International og Goodtemplarordenen. Organisationerne fik ofte selskab af unge besættere, hvoraf nogle ønskede at skabe en aarhusiansk pendant til Christiania på området. I 1980 kunne Olaf P. Christensen oplyse byrådet om, at de ubudne gæster havde brugt for omkring 32.000 kr. i elektricitet, hvorfor kommunen fik lukket af for elforsyningen til bygningen.
I marts 1983 blev Olaf P. Christensens forslag om nedrivning af officersbygningen endeligt forkastet af byrådet. I stedet blev bygningen renoveret, og Aarhus Folkemusikskole kunne i 1985 flytte sin undervisning fra Guldsmedgade 25 til officersbygningen. Der holder skolen stadig til – i dag under navnet Aarhus Musikskole.
Belægning på Vester Allé Kaserne
- 1876-1932 3. Dragonregiment
- 1933-1940 3. Artilleriafdeling og 9. Artilleriafdeling (dengang hestetrukne kanoner)
- 1940-1945 Kasernen besat af tyske tropper
- 1945-1950 Livgarden
- 1953-1955 8. Regiments Stab
- 1960-1962 34. Artilleriafdeling
- 1951-1969 23. og 33. Artilleriafdeling - Nørrejyske Artilleriregiment
- 1961-1973 Drivmiddelkompagni
Se også
Vester Allé Kaserne på AarhusArkivet
| Søg billeder og kilder på AarhusArkivet
|
Litteratur og kilder
- Christian R. Jansen, Den gamle rytterikaserne i Århus Årbog 1977, Århus byhistorisk Udvalg
- P.E. Niemann, Feltartilleriet i Aarhus 1881-1969, Forlaget Zac, 1981
- U.C. Schmidten, Om Casernesagen i Aarhus, 1878
- F. Zeemann, 3’ Dragon-Regiments Forening 1932-1942
- De jysk – fynske styrker domiciler : Århus, 1976
- Rytterikasernen i Århus – historie og nuværende tilstand, Århus Kommune 1977
- Aarhus Byråds Forhandlinger 20.06.1867, 20.02.1873, 01.08.1873, 27.02.1873, 05.08.1873, 19.03.1940, 01.12.1976
- Århus Stiftstidende 09.06.1802, 24.05.1816, 29.08.1900, 19.07.1969, 30.08.1969, 20.08.1974, 02.12.1976, 18.06.1980, 16.07.1980, 11.01.1981, 12.01.1981, 08.08.1982, 22.09.1982, 13.10.1982, 25.11.1982, 01.03.1983, 03.03.1983, 10.03.1983, 23.04.1983, 18.03.1985
- Jyllands-Posten 12.08.1982, 08.03.1985
